Hegelmann Landschaftsarchitekt

Trainingsschwimmhalle an der Landessportschule, Saarbrücken

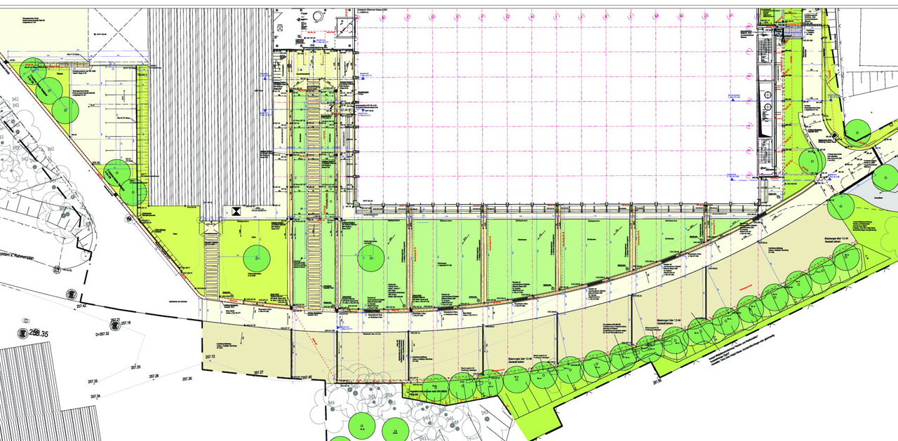
Universitätsschwimmhalle Saarbrücken Universitätsschwimmhalle Saarbrücken Universitätsschwimmhalle Saarbrücken Universitätsschwimmhalle Saarbrücken Universitätsschwimmhalle Saarbrücken Universitätsschwimmhalle Saarbrücken

Trainingsschwimmhalle an der Landessportschule, Saarbrücken

Hegelmann Landschaftsarchitekt