Hegelmann Landschaftsarchitekt

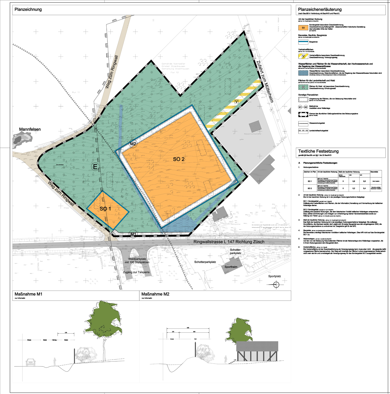
Bebauungsplan ‚Keltenpark‘ Otzenhausen, Nonnweiler

Nonnweiler Otzenhausen Keltenpark Nonnweiler Otzenhausen Keltenpark Nonnweiler Otzenhausen Keltenpark Nonnweiler Otzenhausen Keltenpark

Bebauungsplan ‚Keltenpark‘ Otzenhausen, Nonnweiler

Hegelmann Landschaftsarchitekt