Hegelmann Landschaftsarchitekt

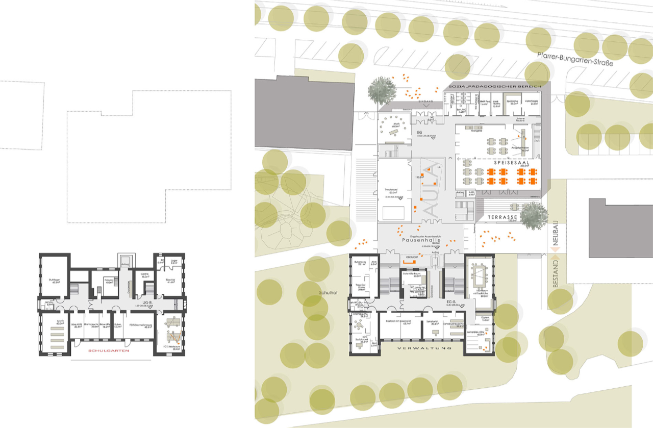
Wettbewerb Wallenbaumschule Saarbrücken

Wettbewerb Wallenbaumschule Saarbrücken Wettbewerb Wallenbaumschule Saarbrücken Wettbewerb Wallenbaumschule Saarbrücken Wettbewerb Wallenbaumschule Saarbrücken Wettbewerb Wallenbaumschule Saarbrücken Wettbewerb Wallenbaumschule Saarbrücken

Wettbewerb Wallenbaumschule Saarbrücken

Hegelmann Landschaftsarchitekt